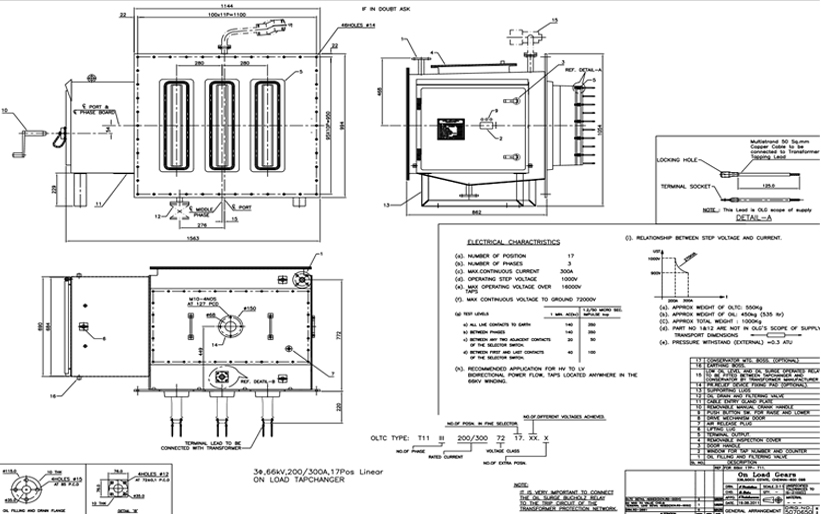
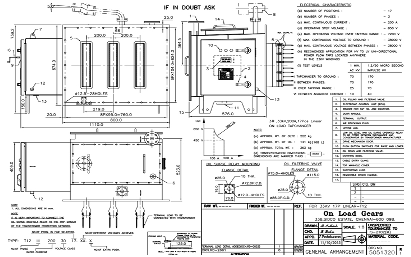
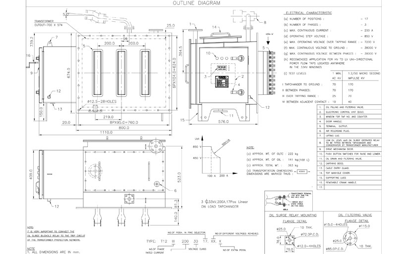
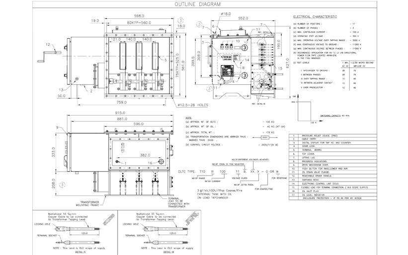
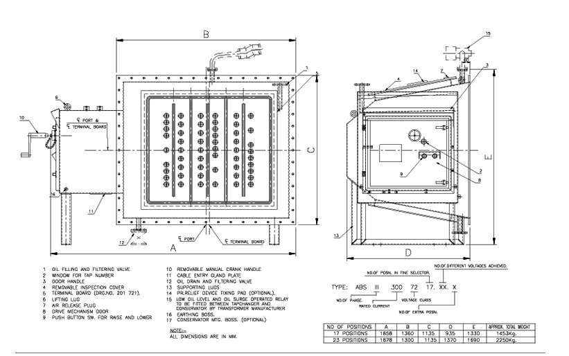
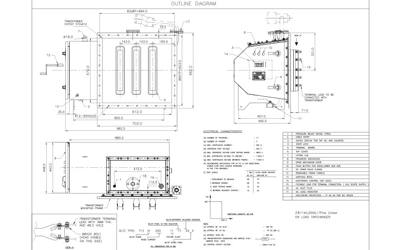
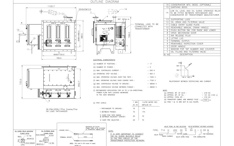
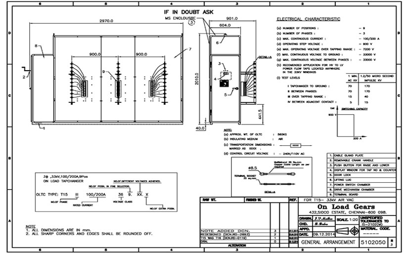
External Flange Mounting Oil Type OLTCs